Veelgestelde vragen - Kunststof kozijnen - Profiel - Verdiept profiel (creon)
We hebben een aantal zaken voor je op een rij gezet.
Verdiept profiel
Download hieronder de technische / details tekening van het creon verdiept profiel:
Technische details Creon verdiept profiel
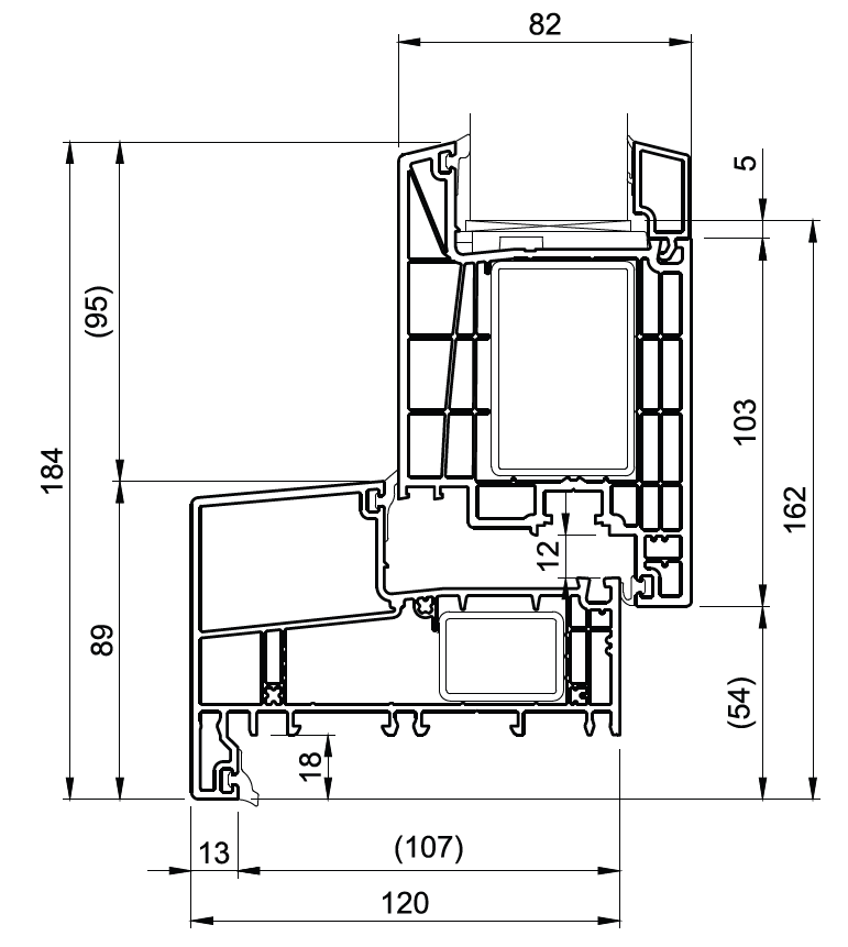
Met aanslag:
Draai/kiep of kiep kozijn
Naar binnen draaiende deuren
Naar buiten draaiende deuren
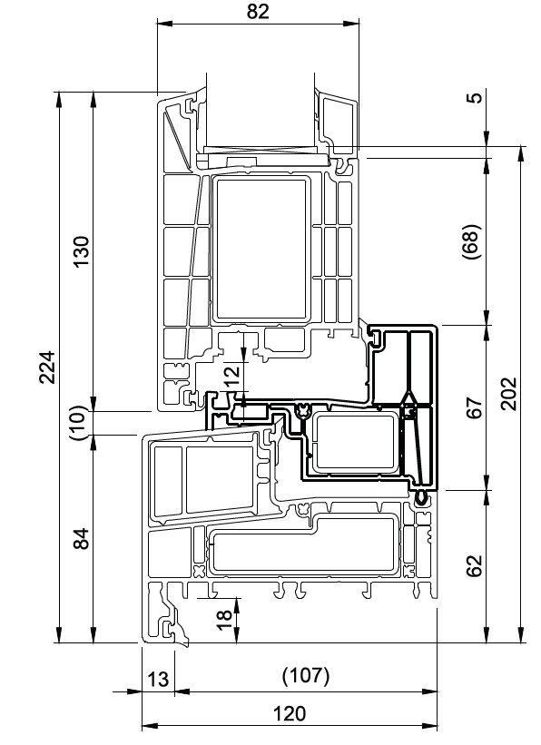
Zonder aanslag:
Draai/kiep of kiep kozijn
Naar binnen draaiende deuren
Naar buiten draaiende deuren

Het verdiepte kozijnprofiel van Creon combineert de modernste profieltechnologie met de traditionele eisen van de Nederlandse markt. Doordat de afmetingen van het kozijnprofiel vrijwel gelijk zijn aan een standaard houten kozijn geeft dit het Creon profiel een natuurlijke uitstraling.
Technisch blijft met het systeem van Creon geen wens meer onvervuld. Bouwdiepte, kamervorming en zinvolle detailconstructies voldoen aan alle verwachtingen betreffende warmte- en geluidsisolatie, statica en inbraakpreventie.
Details:
Het Creon verdiept profiel is 115 mm diep en uitgevoerd met 5 kamers. De aanslag is 13 mm diep en 18 mm breed. Dit profiel is beschikbaar in wit en crème wit, daarnaast kunt u voor diverse houtnerf folies kiezen.
Dit profiel heeft de vertrouwde Nederlandse uitstraling en is stabiel en inbraakwerend door de toepassing van staal. Dit profiel kan uitgevoerd worden met een schuine lasnaad verbinding of HVL .
Bovenstaande verdiept profiel is beschikbaar tot en met woensdag 26 November. Hierna stappen we over op onderstaand nieuw verdiept profiel 120. Het oude profiel is vanaf dit moment slechts voor een bepaalde tijd op aanvraag leverbaar.
Verdiept profiel 120
Download hieronder de technische / details tekening van het creon verdiept profiel 120:
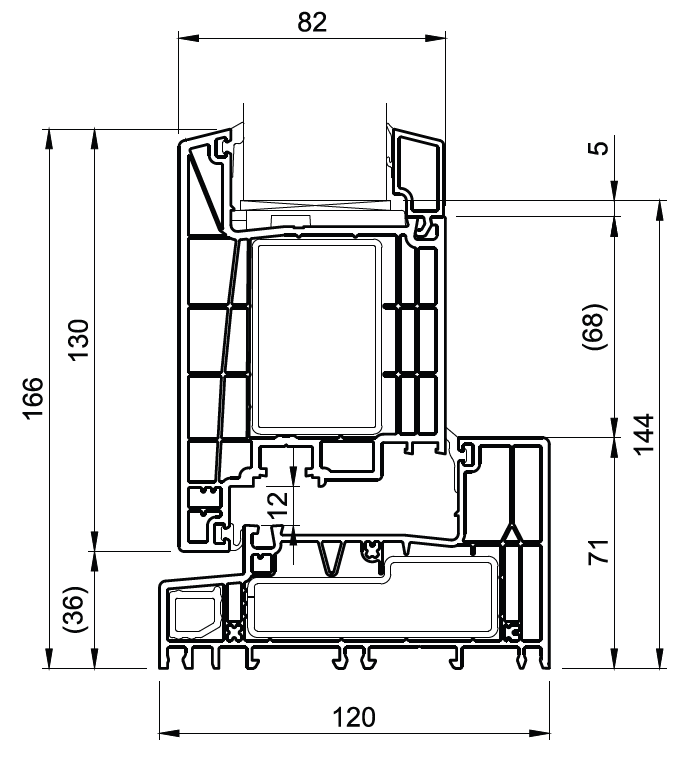
Met aanslag:
Draai/kiep of kiep kozijn 120
Naar binnen draaiende deuren verdiept 120
Naar buiten draaiende deuren verdiept 120
Naar buiten draaiende deuren i.c.m. zij en/of bovenlicht verdiept 120
Zonder aanslag:
Draai/kiep of kiep kozijn verdiept 120
Naar binnen draaiende deuren verdiept 120
Naar buiten draaiende deuren verdiept 120
Details:
Het Creon verdiept profiel 120 is 120 mm diep. De aanslag is tevens 13 mm diep en 18 mm breed. Ook dit profiel is beschikbaar in wit en crème wit, daarnaast kunt u voor diverse houtnerf folies kiezen.
Het "verdiepte profiel 120" betreft ons vernieuwde profiel. Het biedt nog betere isolatieprestaties en heeft een uitstraling die sterk lijkt op een blokprofiel. Zo creëer je met dit kunststof kozijnen profiel de robuuste look & feel van een houten kozijn.
Heeft u nog vragen?
Neem contact op!