Veelgestelde vragen - Kunststof kozijnen - Profiel
We hebben een aantal zaken voor je op een rij gezet.
Kunststof kozijnen en deuren
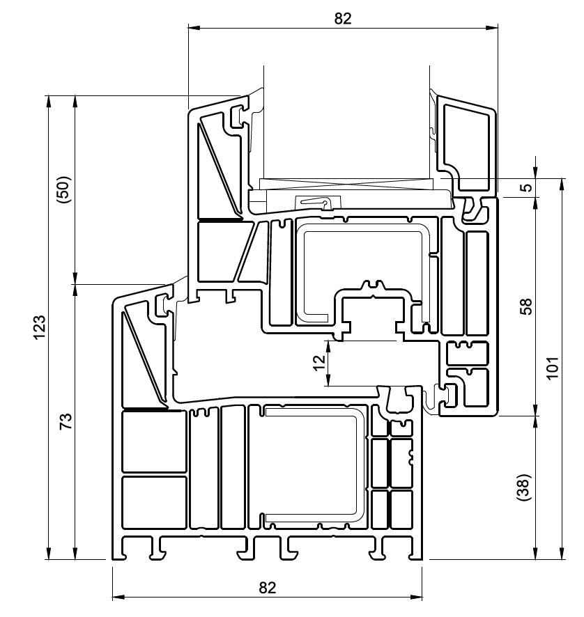
Verdiept profielBij de optie type profiel voor kunststof kozijnen en deuren heeft u drie verschillende keuzes. Het "verdiepte profiel" is een profiel welke speciaal voor Nederland is ontwikkeld. Dit profiel is 115 mm diep. Deze diepte komt overeen met de maatvoering en diepte van een typisch Nederlands houten kozijn. Deze diepte is nodig om voldoende overlap te hebben met de spouwmuur, omdat de kozijnen (meestal) tussen de buitenmuur worden geplaatst.

- Diepte van het profiel 115 mm
- De aanslag van een verdiept profiel is 18 mm;
- Verbinding in verstek of HVL;
Technische tekening Creon profiel met aanslag
Technische tekening Creon profiel zonder aanslag
Technische specificaties Creon profiel
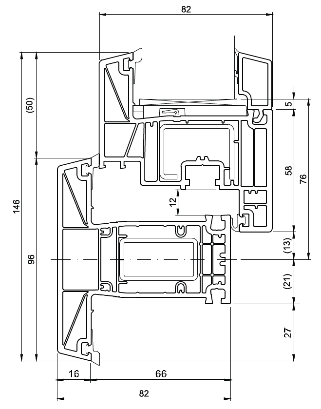
Bovenstaande verdiept profiel is beschikbaar tot en met woensdag 26 November. Hierna stappen we over op onderstaand nieuw verdiept profiel 120. Het oude profiel is vanaf dit moment slechts voor een bepaalde tijd op aanvraag leverbaar.
Verdiept profiel 120Het "verdiepte profiel 120" betreft ons vernieuwde profiel. Dit profiel is 120 mm diep. Het biedt nog betere isolatieprestaties en heeft een uitstraling die sterk lijkt op een blokprofiel. Zo creëer je met dit kunststof kozijnen profiel de robuuste look & feel van een houten kozijn.
- Diepte van het profiel 120 mm
- De aanslag van dit verdiept profiel is 18 mm;
- Verbinding in verstek of HVL;
Technische tekening Creon profiel met aanslag
Technische tekening Creon profiel zonder aanslag
HVL of houtlook verbindingHet verdiepte profiel is ook beschikbaar als "Verdiept profiel HVL" (hout verbinding look of houtlook). Er wordt een speciale techniek toegepast, waarbij de verbinding aan de buitenzijde van het kozijn recht is. Hierdoor lijkt het kunststof kozijn meer op een houten kozijn.
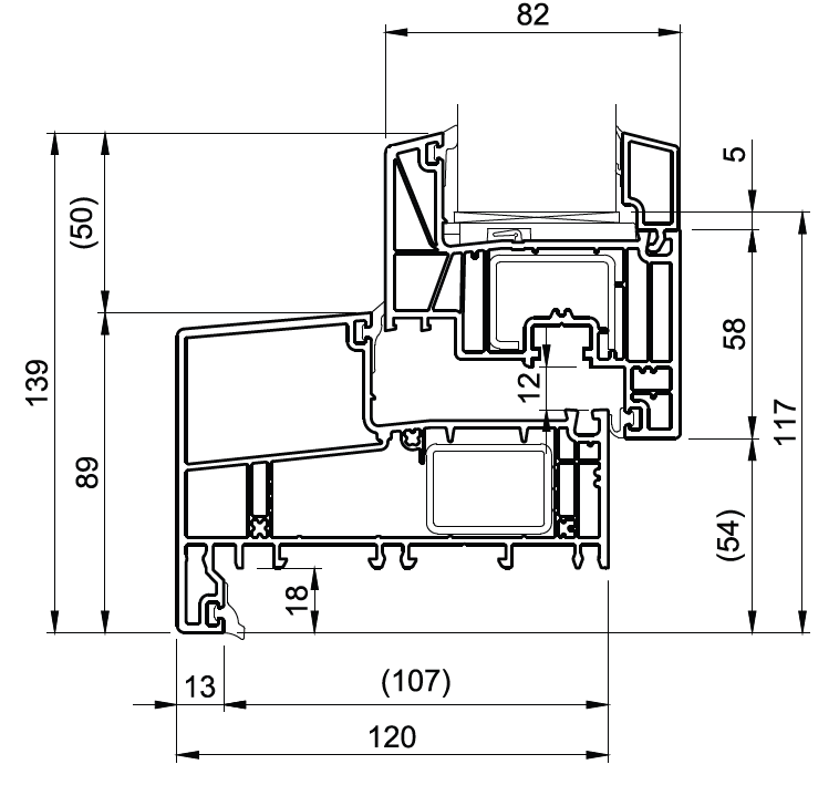
Vlak profielNaast het verdiepte profiel kunt u ook kiezen voor een vlak profiel. De diepte van dit profiel is 73 mm. Met name het uiterlijk aan de buitenzijde is anders t.o.v. een verdiept profiel.

- Diepte van het vlakke profiel 73 mm
- De aanslag van een vlak profiel is 22 mm;
- Verbinding uitsluitend in verstek;
Technische tekening Creon vlak profiel met aanslag
Technische tekening Creon vlak profiel zonder aanslag
Technische specificaties Creon profiel
Bovenstaande vlak profiel is beschikbaar tot en met woensdag 26 November. Hierna stappen we volledig over op onderstaand nieuw vlak profiel 82. Het oude profiel is vanaf dit moment slechts voor een bepaalde tijd op aanvraag leverbaar.
Vlak profiel 82Het "Vlakke profiel 82" betreft ons vernieuwde profiel. Dit profiel is 82 mm diep. Ook bij het vernieuwde profiel is het uiterlijk aan de buitenzijde anders t.o.v. het verdiepte profiel.
- Diepte van het vernieuwde vlakke profiel 82 mm
- De aanslag van het vlakke vernieuwde profiel is 27mm;
- Verbinding uitsluitend in verstek;
Technische tekening Creon vlak profiel met aanslag
Technische tekening Creon vlak profiel zonder aanslag
Algemene details van toepassing op beide profielen:
- Afhankelijk van de afmetingen wordt het profiel uitgevoerd conform de WK2 inbraakwerendheid voorschriften.
- Profiel beschikbaar in de kleuren wit en crème wit.
- Mogelijkheid tot gebruik houtnerf folie waardoor het kozijn een houten kozijn krijgt
- De houtnerf folie is beschikbaar in diverse kleuren
Kunststof schuifpui
U heeft bij de kunststof schuifpui keuze uit twee verschillende systemen.
Schuifpui (EvolutionDrive): Het schuif systeem is een budget variant welke geschikt is voor kleinere afmetingen. Het systeem EvolutionDrive kan worden voorzien van dubbele beglazing en is tot 6 m2 te bestellen. Meer informatie.
Schuifpui (EvolutionDrive Plus): Het schuif systeem is licht te bedienen en scoort zeer goed op het gebied van wind- en waterdichtheid. Het systeem EvolutionDrive Plus kan worden voorzien van dubbele beglazing en triple beglazing.
Heeft u nog vragen?
Neem contact op!